中国铁建·西派海上(中国铁建·西派海上售楼处)-2025年首页网站-德信官方网站楼盘详情 价格户型

2025-11-06 18:42:17
浏览次数:
返回列表

  德信体育(dxsports)是全球最大的在线综合性娱乐平台[永久网址:363050.com]德信体育每天为您提供近千场精彩体育赛事。包括德信、德信棋牌、德信彩票、德信电竞、德信、德信电子、全球各地赛事、动画直播、视频直播等服务。德信体育,德信娱乐,德信官方网站,德信德州,德信体育网址,德信体育app,德信体育平台,德信体育注册链接,德信扑克,欢迎注册体验!开门见山,总价约900万级的【西派海上】,我认为是上海内中环难寻对手的「质价比王者」。四开四火之后,项目

  现在的【西派海上】就是个明摆着的「红包盘」。从市场的对比、产品的呈现,到板块的兑现,一切都已经是明牌。

  上海内中环新房价格全面站上11万+,【西派海上】9.2万/ m²的联动价,是绝对的价格洼地。而且同板块绿城地王楼板价楼板价约7.14万/㎡,比【西派海上】高出28%,业内普遍预计未来售价11万起。而【西派海上】收官批次房源均价仅91632元/㎡。

  【西派海上】约8000㎡示范区早已实景呈现,高定公区、泳池会所和精装品质所见即所得,水准不输于现在均价十几万的顶豪。亲临现场之后,必然会被震撼和折服。

  张江,是上海更具确定性的规划,也是为数不多的还能吃到板块规划发展红利的地方。【西派海上】与张江之源一路之隔,是内中环少有的成片开发区域,板块规划加速兑现,前景清晰可见。

  本次收官加推的房源,7#和9#为临河景观头排,15#是中央景观楼王,楼栋位置十分优越。主力总价900万级,少量非标房源总价只在500-600万!

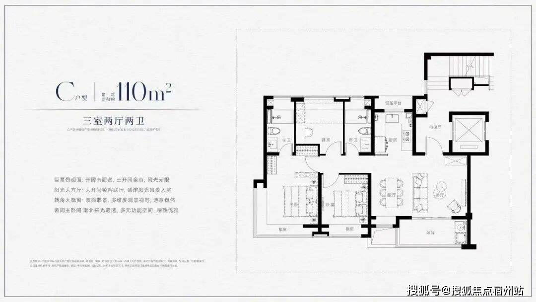
  标准的3房2卫飞机户型,三开间朝南且南北通透的设计,让室内容纳更多的采光与通风;全卧室飘窗设计,有效延申室内空间,增添休闲空间功能;U形厨房设计,厨房联通餐厅、客厅及阳台一体化设计,空间感十足!

  此户型在103㎡户型的基础上,将南向主卧、北向次卧均升级了约270°转角飘窗设计,采光视野及美观性都得到了极大提升。

  大开间短进深的大横厅户型,四开间朝南+类一梯一户设计+南北通透+主卧套房+约270°转角飘窗,堪称上海楼市的“神户型”。

  一梯一户+三个卧室&客厅朝南+南北通透+入户玄关+主卧套房,堪称张江区域改善的天花板了。

  首先,项目全系为一梯两户对开门设计,每户尊享独立电梯间,加上入户的玄关,给业主最好的私密居住体验!

  另外,归家门厅墙面由石材镶嵌意大利毕加索奢石,地面为大理石水刀海派拼花,且入户门为定制浮雕铸铝装甲子母门,门上配有飞利浦六合一智能门锁。(实际以开发商公示为准)

  这个南向透亮度,实在是让人格外惊喜。并且项目是小高层与洋房组成的社区,这意味着社区的每一户,几乎都拥有如此充足的日照采光和景观视野。

  厨房方面,项目全系标配中西厨搭配,中间用无地面链条设计的海派金属玻璃移门隔开,使厨房地面与客厅打通,通铺的简一地砖,

  用料上项目厨电配置了意大利进口品牌SMEG的灶台油烟机、博世太空舱五合一(蒸烤炸炖煮)蒸烤一体机与博世15套嵌入式洗碗机。(实际以开发商公示为准)

  水槽采用了魔力多功能的水槽龙头以及枪灰色不锈钢表面大单槽,高效便捷的同时,更显美观。

  主卧方面,项目为主人打造了尊享套房设计,容纳了卧室、衣帽区、饰品展示柜、卫生间等四大功能区。

  整个卫生间用到了包括定制通高连纹岩板,定制石材小拼花、毕加索奢石、透光奢石在内的多种奢侈配置。

  台面上方的镜柜通长设计,自带隐藏式美颜灯、牙刷吹风机综合支架、以及美妆冰箱!

  同时,项目的卫浴洁具选用了全套的高仪产品,包括独立式全智能马桶、台盆、三孔调节龙头、恒温顶喷花洒等等。

  整个户型细节、优势、匠心的环节太多了,真的得参观一次,才能懂得什么是如今上海更高产品力的项目、什么是匹配时代的匠心作品。

  2024年3月15日的上海首轮土拍,中国铁建&国贸联合体以49.7517亿的总价竞得浦东新区北蔡楔形绿地C11-01、C11-05地块,联动价9.2万/㎡。

  地块四至范围:东至规划七路、南至C11-06地块、西至规划四路、北至北中路,总用地面积44681㎡,容积率均为2.0,属于规划中的北侧楔形绿地板块,东侧临近罗山高架,一路之隔就是张江科学城!

  C11-01地块用地面积28198㎡,总建筑面积86488㎡,包括地上建筑面积60663㎡,地下建筑面积25824㎡,规划住宅套数下限575套。

  C11-05地块用地面积16483㎡,总建筑面积50280㎡,包括地上建筑面积35208㎡,地下建筑面积15071㎡,规划住宅套数下限336套。

  根据土地转让合同要求显示,项目中小套户型的比例要求不小于70%;全装修比例100%,装标不低于3000元/㎡(集采价)。

  16幢10至16层高层住宅、2幢1层配套用房及垃圾房、KP站等附属设施。

  从项目流出的众多效果图中可以看出,整个社区非常高达上,外立面采用大面积玻璃幕墙+铝板,大面积的石才运用也随处可见。

  环岛式落客门庭:以宏大空间与沿街展开面,运用石材、金属、奢石、拼花等元素,将海派基因细腻复刻入内里,构筑令人瞩目的城市界面。

  约120米映波回廊:马赛克无边水景波光粼粼,大面积大理石景墙升华厚重质感,深色铁艺匹配水纹玻璃,光、水、廊静谧融合,刻画风尚洗心之旅。

  海上古典花园:复刻查尔斯国王的海格罗夫庄园设计,打造经典棋盘铺装及水法喷泉,小而精巧。

  罗密欧阳台:灵感源自武康路210号的“罗密欧阳台”的超大花瓣阳台,刻画“繁花”情境。

  大师定制超级符号:盛聘胡栋民、张代松、陈新等雕塑师,致敬百年华尔道夫,结合多种前沿材料与工艺,镌刻西派生活腔调。

  与此同时,还高定奢配约2000㎡的华尔道夫酒店式高端会所及主题泛会所,圆梦张江板块前所未享的尊奢人生。

  高端会所:涵纳华尔道夫经典孔雀廊、恒温泳池、水吧、健身房、壁球馆、私宴区、儿童区等,业主可以在这里游泳健身、邻里交流,举手投足间尽显优雅品味。

  下沉水院:核心焦点是天光茶室,打通首层水景池底,引入自然天光,整体营造比较浪漫、松弛的场景氛围,作为下午茶拍照打卡的理想场所。

  繁花之梯:同频百年华尔道夫,以精工细节打造海派艺术空间,一抹红色艺术楼梯是会所中的点金之笔,其形态宛若一缕红飘带,点缀于会所当中。

  泛会所:营造集花艺、日咖夜酒、休闲阅读、咖啡体验、社交娱乐、骑行沙龙等多重功能为一体的“集中式”超级聚场,闲暇时,一壶茶,一本书,就能开启一次难忘的海上惬意之旅。

  据悉,北蔡楔形绿地是上海2035总规明确的中心城10片楔形绿地之一,将形成以楔形绿地为核心、绿城融合、多元复合的城市空间。

  除了已完成出让的C11-01和C11-05住宅地块,产业社区(北区)产业用地、商业商办用地均已完成土地储备;规划生态居住社区内已有两幅居住用地完成出让。

  值得一提的是,项目周边规划由多个绿地公园,目前C11B-01地块(部分)、C11b-03地块(部分)等10幅绿地用地设计方案均已公示,均由浦开承建,预计三年内建成;

  此外,地块所在规划单元内规划配备了完善的教育设施,包括2所幼儿园、1所小学和1所初中。

  综合来看,该项目具有一定的地段优势,内中环间,距离张江、陆家嘴、前滩等核心板块都比较近。

  不过目前整个板块的规划落地还需要很长的时间,国贸中铁建西派海上作为板块内首发地块,具有一定的挑战性!

  交通方面:项目周边有8号线号线三轨交环绕,自驾出行项目临近罗山高架、中环路、高科西路等主干道,可快速直达前滩、陆家嘴、人民广场等核心区域,距离张江更是一路之遥。

  商业方面:四至范围内还是大片的空地,暂无商业配套,根据板块规划来看,周边虽然有部分商业规划,但规模不大,而且什么时候能落地,也是一个未知数。

  距离项目5公里范围内,有长泰广场、龙阳广场等商业,自驾约15分钟左右可达!

  教育方面:周边有规划2幅幼儿园用地、1幅小学用地以及1幅初中用地,根据答疑纪要显示,地块周边规划的幼儿园、小学等配套将同步实施建设。

  在传统印象里,内环不但是地段价值顶端,新房也是热度最高、最抢手的。但数据却与我们的主观认知存在明显偏差——内中环才是上海隐藏大BOSS。

  数据2,近1000%的新房价格涨幅,更碾压内环一大截,即便将时间线年,内中环也比内环超涨200%,充分证明它的强势爆发。

  综上所述,内中环无疑是下一个“兵家必争之地”,而深入市场你会发现,浦东内中环——西派海上,才是其中的最大赢家。整盘联动价9.2w/㎡,几乎用同环线红包价,买到一个把产品往死里磕的作品。

  其次,约8000㎡超级示范区实景呈现,大师群著,一出手就是“王炸”!在两大品牌的强力背书之下,项目特邀李益中(空间)、胡栋民(雕塑)、笛东(景观)等全球大师,打造了约8000㎡的美学示范区,为业主呈现高端生活方式。

  在这里,我敢大胆直说,这是迄今为止我在张江见过的最有范的全实景美学示范区!大气尊贵的环岛式酒店落客门庭,张江首秀!当你远远地站在小区的主入口,就会被入户门庭的磅礴气场所震撼!

  ☑️☑️中铁建西派海上售楼处电线㎡环岛式酒店落客区+约88m气派门头+鎏金吊顶,就像打开了一幅巨幅画卷般,让人充满了对于归家的向往。

  门前屹立的汉白玉材质雕塑,是由胡栋民大师历经3个月雕刻而来,价值百万,一下子就拔高了项目的审美艺术气息!

  约500㎡马赛克无边水景已实景呈现,并贴心设计了下沉式亲水卡座、舒适沙发与躺椅,都心生活的松弛感,分分钟拿捏了。

  还有复刻了海格罗夫庄园设计的古典花园,衔接小区内部的架空层空间。错落有致的花圃、修剪整齐的灌木丛以及蜿蜒的小径,仿佛将你带入了一个充满诗意的英式庄园。无论是悠闲地散步,还是与家人朋友共度美好的午后时光,在这里都可以收获满满的幸福与感动!

  整个会所采用下沉式庭院设计,大尺度玻璃开窗,拥有优秀的采光和视野,庭院美景尽收眼底!

  池底运用了繁花马赛克,墙面与地面均使用大理石,天花则运用发光玉石与造型艺术板,艺术气息拉满。

  采用豪宅标配的健身品牌,waterrower 的划船机、NOHrD跑步机、健身车等,尊贵感不言而喻。

  此外,部分楼栋设置了架空层泛会所空间,包括时光花房、日咖夜酒、城市会客厅、手冲咖啡体验区、共享会议室、儿童乐园等等。温馨提示:架空层的部分功能区域(如日咖夜酒、咖啡体验)等空间,不具备经营功能,仅作为后期业主社交以及物业活动办理空间。

  为了打造社区的归属感和幸福感,西派海上还将尝试成立圈层活动,烘焙艺术、手工DIY、户外运动、电影沙龙等,丰富业主生活。如此丰富齐全的社区配置和软性服务,任谁看了都会心动!

  而在选材用料和审美品味上,更是精益求精!比如社区大门背景墙采用巴西铂金钻奢石与土耳其雅博白奢石,和西派海上玉兰花形状的鎏金LOGO相得益彰;

  接待大堂采用全手工拼贴的“繁花”马赛克背景墙,地面是海派拼花地砖,奢贵沉稳又不失华丽质感;

  如果仔细看,你会发现无论室内室外,包括地下车库,还有很多地方用到雅博白石材。这款石材比国产的石材至少要贵20%-50%,肉眼可见的仪式感拉满。

  与不计成本投入工艺的“耿直”形成鲜明对比的,是西派海上产品设计上的敏锐。

  首先,西派海上的面积设计就非常聪明项目三批次加推建面约103㎡3房、142㎡4房,主打就是一个“人无我有,人有我强”。以这次收官的建面约142㎡4房为例:

  而西派海上对于生活的享受还不止这些,在装标上也很舍得。毕竟项目可是荣获了SYDNEY DESIGN AWARDS 2024(2024悉尼设计大奖)室内设计高级别金奖。

  在使用频次很高的厨房和卫浴品牌上,均采用国际一线大牌,明显优于同价位其他楼盘

  比如,项目大量使用造价昂贵的奢石艺术,用石材沉稳的气质打造更有格调的居住空间,归家门厅墙面由石材镶嵌意大利毕加索奢石,地面为大理石水刀海派拼花。

  又比如,不同于传统厨房设计,项目在厨房与客厅之间用吊轨海派金属玻璃移门隔开

  除了产品力很牛,西派海上的地段价值更是出类拔萃!首先当然是9字头入住内中环的地段站位。大家都知道现在土拍已经取消了10%溢价率上限,新房涨价已经“明牌”,看一圈当下内中环的新房价格格局:

  内中环在2024年已经迎来一轮上涨潮,而这个趋势在2025年仍然不会变。再反观西派海上,价格还停留在9字头,却匹配西派顶序产品力,锁定了中环线万+必看项目。这样的时代机遇不抓住,后面肯定会悔得拍大腿。

  地段上,西派海上不是以往周边项目打的“张江外溢”,它是正张江,离上海光源、药谷等近到都不用开车,骑电瓶车就能通勤。

  而张江作为上海龙头产业区的地位及约50万高科技人才,保证了北蔡楔形绿地的发展潜力。

  何况,项目周边远不止一个张江,它更是陆家嘴、前滩、世博、张江共同的芯,那西派海上凭借内中环的区域,及近罗山高架路、内环(直线公里)、中环的交通优势,将成为承载这些高能产业区居住需求的理想之地。

  教育上,整个区域内有2所幼儿园、1所小学、1所初中的规划,教育氛围浓郁。

  (免责:本项目宣传中对项目周边教育资源的介绍,旨在协助提供地理位置等相关信息,并不视为本公司对就读学校作出承诺,学区划分等具体信息应以教育主管部门及办学方颁布的政策规定为准。)

  第四,未来各小区之间新房买入价差不多,价值底线更稳,不会出现同一个片区买得早几千一平的买入价和买得晚十万一平的买进价,价格相差太大容易突破价格底线。

  平台声明:该文观点仅代表作者本人,搜狐号系信息发布平台,搜狐仅提供信息存储空间服务。

搜索